マンションの仕組み(第五十七歩)
■花鳥風月 / マンションの擁壁工事(その1)
マンションの宅地造成の際には擁壁を、ときどき施工します。そして、マンションの建設工事の際には、普通にあちこち擁壁を施工します。
擁壁(ようへき)とは普段は書きなれない・聞きなれない方もいれば、マンション関係者の中には過去の神奈川県のマンション事故で眉をひそめる方もいると思います。
擁壁の「擁」は、抱きしめる意味の抱擁(ほうよう)の「擁」なので、考え方を変えると、なんとなく安心感が持てると思います。地震や雨の多い日本では擁壁は安心できる壁でなくてはならないのです。
「擁壁」とは何かというと、土砂の側圧に対抗して崩壊を防いで安全性を保つための構造物で、建築物に附属する門や塀とは異なります。
擁壁には色々な種類があり、いつも見慣れた景色になっている積上げた石の間にモルタルなどを充填した一般的な「練積み(ねりづみ)擁壁」、古い石垣などのような石を積上げただけの「空積み(からづみ)擁壁」、山間部の急傾斜地で見られる「重力式擁壁」、普通にマンションや住宅地などで見られるコンクリート製の「L型擁壁」などがあります。つまり私たちは日常の景色として擁壁を眺め、その擁壁に囲まれて、利用して生活しているのです。
以前にも書きましたが、マンションは土木工事がなければ成り立ちません。その理由は以下になります。
「建築物の敷地は、これに接する道の境より高くなければならず、建築物の地盤面は、これに接する周囲の土地より高くなければなりません。[建築基準法第19条(敷地の衛生及び安全)]」
つまり、マンションという建築物の広い敷地に接する道路が坂道の場合は、敷地を高くしたり段差を造るために土木工事での構造物としての擁壁が必要になるのです。
宅地造成等規制法、開発許可等を受けた擁壁には建築基準法の確認申請は準用されませんが、高さ2mを超える擁壁は確認申請が必要になります。なので、ざっくり言うと、高さが2mを超える擁壁は安全性が確保されています。
逆に言うと、高さが2m以下の擁壁や、古い基準の擁壁は地震等で崩壊の危険性があります。具体的に言うと、水抜きパイプの設置されていない擁壁や、現在の基準に合わない先代からの石積み、古い住宅の大谷石の石積み、お城の城壁などの多くの空積み擁壁は、過去の大地震で崩れて道をふさいだり、上載する家屋を倒壊させたりしています。
石積擁壁には「練積み擁壁」と「空積み擁壁」があると書きましたが、その違いは決定的です。
「練積み擁壁」は、基礎コンクリートの上に石材を積みながらその背面にコンクリートを充填します。そのコンクリートのさらに背面には、裏込めの砕石を入れて土砂の流出を防ぎます。水抜きパイプは石材背面に充填されたコンクリートを貫通して砕石部分から雨水等の浸透水を受ける構造です。そして擁壁の天端(頂部)もコンクリートで保護し、状況によっては排水溝を設置します。
「空積み擁壁」は、固めた地盤の上に石材を積みながらその背面に裏込めの土を入れただけの擁壁です。
石材の間にモルタル等は充填されていないので、土圧の対象が地盤強度であるN値が小さく、内部摩擦角の小さい土質の場合は、長い年月で流出して中がスカスカになっている可能性があります。
「空積み擁壁」は1961年の宅地造成等規制法で技術基準を満たさない擁壁となっています。
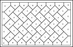
左の図は、いつも見慣れた練積み擁壁の割付図です。
職方さんが1個づつ積んでいきます。JIS規格の石材なので
1個の石材が6個の石材に接していて、かなり頑丈です。
その石材の裏側にはコンクリートが充填されています。
現在の規格化された石材の石積みではなく、ゴロゴロした石積みで古いものは「練積み」か「空積み」かは見た目では判断できません。その場合は検査会社に依頼して、表面波探査などの非破壊検査を実施してください。しかし検査会社は検査だけなので、補強工事は建設会社に依頼することになります。
前述した神奈川県のマンションの事故は、約8mの高さの練積み擁壁の上の斜面(法面:のりめん)が崩壊したのであって、擁壁自体が崩壊したのではないので言葉を選ぶ必要があります。
次回は、マンションの擁壁工事(その2)について説明します。
(一級土木施工管理技士/マンション管理士 福森 宏明)
【執筆者プロフィール】
福森 宏明(ふくもり ひろあき)
長年にわたり、大手建設会社で実際に多くのプロジェクトを建設してきた現場所長経験者。
清掃工場等のプラント施設や駅前の都市再開発からタワーマンション、震災後の復興支援から廃炉事業まで携わってきました。マンションでは100億円以上の団地型マンションも数件建設しています。
「環境省・文部科学省・農林水産省指定の環境教育指導者」及び1000山登山家としても活動中。
本連載では、土木・建築・造園の専門家として最新の建設技術、実際の建築現場とメンテナンス、リノベーション、住まいの安全対策、自然環境などを執筆中。
資格:一級(土木・建築・造園)施工管理技士/建築積算士・自然再生士/マンション管理士
